Property in Rotherham
Find discounted property in this area!
Filter your results
Land on Moorgate Road, Rotherham Land for sale
An opportunity to acquire building plot with Pre Planning application for the construction of 12 fla...
Property added on 24/06/24
Property located in Land On Moorgate Road, Rotherham S60
£1,000,000
5 High Street, Braithwell, Rotherham 3 bed cottage for sale
A rare opportunity to purchase a beautiful, picturesque cottage in the heart of Braithwell, offering...
Property added on 07/05/24
Property located in 5 High Street, Braithwell, Rotherham
£340,000
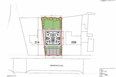
Plot for sale
WITH PLANNING FOR TWO DWELLINGS TO MAKE A FEW GRAND.
Property added on 27/04/24
Property located in Brinsworth Lane, Brinsworth, Rotherham
£130,000
Market Street, Rotherham 2 bed flat for sale
Planning permissions N/AAccessibility features N/ACoal mining area South Yorkshire is a mining area ...
Property added on 25/03/24
Property located in Market Street, Rotherham S60
£85,000
Rotherham S63 Plot for sale
For sale in this popular Bolton Upon Dearne location is this plot of land ready for development, wit...
Property added on 07/09/23
Property located in Rotherham S63
£60,000
4 bedroom detached house for sale
The property offers excellent living space inside with so much business potential and also benefits ...
Property added on 04/03/23
Property located in High Street, Rotherham
£450,000