Property in the UK

Find discounted property in this area!

Crowther Avenue, Calverley, Pudsey... 3 bed semi

Crowther Avenue, Calverley, Pudsey... 3 bed semi

To the first floor, there is access from the landing into a useful loft space with light, two well-p...

Property added on 05/11/25
Property located in Crowther Avenue, Calverley, Pudsey, West Yorkshire LS28
£385,000
ECHO CENTRAL TWO, CROSS GREEN LANE... 2 bed flat for sale

ECHO CENTRAL TWO, CROSS GREEN LANE... 2 bed flat for sale

Forming part of the popular Echo Central 2 development and being sold via a modern auction method, i...

Property added on 05/11/25
Property located in ECHO CENTRAL TWO, CROSS GREEN LANE, LEEDS, WEST YORKSHIRE, LS9
£130,000
ECHO CENTRAL, CROSS GREEN LANE... 2 bed flat for sale

ECHO CENTRAL, CROSS GREEN LANE... 2 bed flat for sale

72 pa, inc buildings insurance Council Tax - Band C Lease Term - 155 years (less 1 day) from 1 Janua...

Property added on 05/11/25
Property located in ECHO CENTRAL, CROSS GREEN LANE, LEEDS, LS9
£135,000
SKYLINE, ST PETER STREET, LEEDS, LS9 1 bed flat for sale

SKYLINE, ST PETER STREET, LEEDS, LS9 1 bed flat for sale

Being sold via a modern auction method, where buyer fees apply - is this well presented, 414 sqft, 1...

Property added on 05/11/25
Property located in SKYLINE, ST PETER STREET, LEEDS, LS9
£80,000
Armitage Close, Middleton... 3 bed detached house for sale

Armitage Close, Middleton... 3 bed detached house for sale

EPC - TBCHouses on Armitage Close of this size rarely come up for sale and is sure to be popular giv...

Property added on 05/11/25
Property located in Armitage Close, Middleton, Manchester, M24
£300,000
Sunningdale Avenue, Sale 3 bed semi

Sunningdale Avenue, Sale 3 bed semi

Planning permission was granted and approved in 1994 for both the kitchen extension and the loft con...

Property added on 05/11/25
Property located in Sunningdale Avenue, Sale
£475,000
Church Road, Maidstone ME15 29 bed property for sale

Church Road, Maidstone ME15 29 bed property for sale

Planning permission was granted in February 2024 for change of use from residential care home to a 2...

Property added on 05/11/25
Property located in Church Road, Maidstone ME15
£2,500,000
2 bed semi-detached bungalow

2 bed semi-detached bungalow

A spacious front driveway provides ample off-road parking, with potential to add a carport or garage...

Property added on 05/11/25
Property located in Charlton Lane, West Farleigh, Maidstone ME15
£425,000
Linton, Maidstone, Kent Land for sale

Linton, Maidstone, Kent Land for sale

Planning approval has been granted for the conversion of the prominent Grain Store into two exceptio...

Property added on 05/11/25
Property located in Linton, Maidstone, Kent ME17
£3,250,000
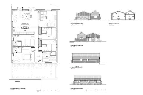
Mount Castle Lane, Lenham ME17 4 bed barn conversion for sale

Mount Castle Lane, Lenham ME17 4 bed barn conversion for sale

Substantial Barn Conversion Opportunity with Prior Planning Granted...

Property added on 05/11/25
Property located in Mount Castle Lane, Lenham ME17
£400,000