Property in the UK

Find discounted property in this area!

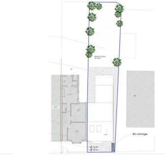
Reynolds Mews, Wilmslow 3 bed detached house for sale

Reynolds Mews, Wilmslow 3 bed detached house for sale

A historical planning permission was approved (now lapsed) proposing a first floor extension to form...

Property added on 20/06/25
Property located in Reynolds Mews, Wilmslow SK9
£565,000
Swanbrook Court, Bridge Avenue... 1 bed apartment for sale

Swanbrook Court, Bridge Avenue... 1 bed apartment for sale

NoRESTRICTIONS: None that we have been made aware ofRIGHTS & EASEMENTS: None that we have been made ...

Property added on 20/06/25
Property located in Swanbrook Court, Bridge Avenue, Maidenhead, SL6
£100,000
Lock Avenue, Maidenhead, Berkshire 4 bed detached house for sale

Lock Avenue, Maidenhead, Berkshire 4 bed detached house for sale

A vacant period four bedroom, detached house requiring refurbishment, superbly located in the heart ...

Property added on 20/06/25
Property located in Lock Avenue, Maidenhead, Berkshire
£550,000
4 bedroom detached house for sale

4 bedroom detached house for sale

A vacant period four bedroom, detached house requiring refurbishment, superbly located in the heart ...

Property added on 20/06/25
Property located in Lock Avenue, Maidenhead, Berkshire
£550,000
3 bedroom semi-detached house for sale

3 bedroom semi-detached house for sale

WEST FACING LAND SORRENTO ROADThis fantastic plot offers planning permission for a spacious 3 bedroo...

Property added on 20/06/25
Property located in Sorrento Road, SUTTON
£240,000
Holly Lane East, Banstead 4 bed detached house for sale

Holly Lane East, Banstead 4 bed detached house for sale

The current homeowners have sought planning permission for a single-story rear extension.

Property added on 20/06/25
Property located in Holly Lane East, Banstead SM7
£1,250,000
4 bedroom detached house for sale

4 bedroom detached house for sale

In addition, there is an unconverted loft adding potential to adapt to extra bedroom accommodation, ...

Property added on 20/06/25
Property located in Gastard Lane, Gastard, SN13
£950,000
Shirley Avenue, Shirley, Southampton... 4 bed detached house for sale

Shirley Avenue, Shirley, Southampton... 4 bed detached house for sale

ADDITIONAL INFORMATION Materials used in construction: BrickOwners have sold rear of garden to Coast...

Property added on 20/06/25
Property located in Shirley Avenue, Shirley, Southampton, Hampshire, SO15
£600,000
Bradley, Alresford, Hampshire, SO24 4 bed bungalow for sale

Bradley, Alresford, Hampshire, SO24 4 bed bungalow for sale

Approved Planning PermissionThis home presents an exciting opportunity to personalise and expand, wi...

Property added on 20/06/25
Property located in Bradley, Alresford, Hampshire, SO24
£695,000
King Edward Road, Stanford

King Edward Road, Stanford

This gem is an irresistible find for those seeking comfort and potential in one elegant parcel.

Property added on 20/06/25
Property located in King Edward Road, Stanford-Le-Hope, SS17
£425,000