Property in the UK

Find discounted property in this area!

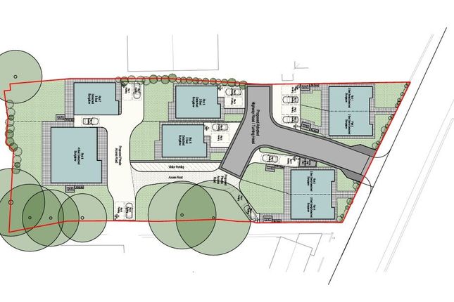
Black Torrington, Beaworthy, Devon, EX21 6 bed barn conversion for sale

Black Torrington, Beaworthy, Devon, EX21 6 bed barn conversion for sale

Agents note Planning reference Torridge District Council 1/0927/2024/AGMB This development forms par...

Property added on 20/11/25
Property located in Black Torrington, Beaworthy, Devon, EX21
£275,000
Well Street Number Two, Bethesda LL57 1 bed end of terrace house for sale

Well Street Number Two, Bethesda LL57 1 bed end of terrace house for sale

Please note that since the 1st September 2024, under the Article 4 Direction issued by Gwynedd Counc...

Property added on 20/11/25
Property located in Well Street Number Two, Bethesda LL57
£175,000
Victoria House, 36 Albion Place... Residential development for sale

Victoria House, 36 Albion Place... Residential development for sale

PlanningPlanning Permission has been granted under reference 25/503344/FULL, dated 13th November 202...

Property added on 20/11/25
Property located in Victoria House, 36 Albion Place, Maidstone, Kent
£590,000
Witham Place, Boston PE21 16 bed block of apartments for sale

Witham Place, Boston PE21 16 bed block of apartments for sale

This investment opportunity comprises 5 spacious two bedroomed apartments which have been modernised...

Property added on 20/11/25
Property located in Witham Place, Boston PE21
£1,250,000
Land On The North Side Of Nunnery... Property for sale

Land On The North Side Of Nunnery... Property for sale

A previous planning application for Permitted Development, under ref: 24/01591/3QPA for conversion t...

Property added on 20/11/25
Property located in Land On The North Side Of Nunnery Lane, Newport, Isle Of Wight
£150,000
Land At Summers Court, Totland Bay... Land for sale

Land At Summers Court, Totland Bay... Land for sale

Planning Planning Permission was originally obtained for a housing estate on land abutting Summers L...

Property added on 20/11/25
Property located in Land At Summers Court, Totland Bay, Freshwater, Isle Of Wight
£995,000
Fishers Green Road, Stevenage SG1 3 bed semi

Fishers Green Road, Stevenage SG1 3 bed semi

The frontage offers off road parking and has further potential to increase the driveway.

Property added on 20/11/25
Property located in Fishers Green Road, Stevenage SG1
£425,000
Land Adjacent to 29 Selby Crescent... Land for sale

Land Adjacent to 29 Selby Crescent... Land for sale

Guide Price = £10,000+*For Sale By Online PublicAuction 10th December 2025 09:30 AM.

Property added on 20/11/25
Property located in Land Adjacent to 29 Selby Crescent, Freshbrook, Swindon, Wiltshire, SN5 8PE
£10,000
Garages 43

Garages 43

PlanningPlanning Permission was granted by Test Valley Council under ref: 24/02806/FULLS, dated 6th ...

Property added on 20/11/25
Property located in Garages 43-50, Viney Avenue, Romsey, Hampshire
£110,000
139 Lower Bryan Street, Hanley Land for sale

139 Lower Bryan Street, Hanley Land for sale

Public House & 2 Bedroom ApartmentPotential for alternative uses (Subject to planning) For Sale By A...

Property added on 20/11/25
Property located in 139 Lower Bryan Street, Hanley
£135,000