4 bedroom detached house for sale

>

4 bedroom detached house for sale

High Street, Doncaster DN3
£485,000

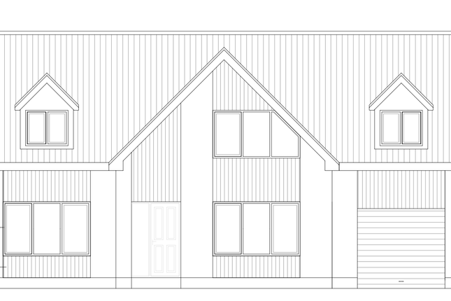
Our Summary

  • The property has recently had planning passed for a complete transformation and there is still time to discuss the internal choices if an offer can be agreed with the developer prior to March 2026
  • Viewings Are Via Developer Appointment Only

Description

This stunning property is set to undergo a complete renovation, transforming it into a stylish detached dwelling with four bedrooms. The transformation is expected to be completed by April 2026, and the developer is open to discussing internal choices with a buyer who can agree to an offer prior to March 2026. The property will feature a modern design, including an entrance hallway, lounge, office space, WC, open-plan living/dining kitchen, stairs to the first floor, and four spacious bedrooms, including a master bedroom with en-suite. The property is situated in the sought-after village of Barnby Dun, with a range of amenities nearby, including a local pub, farm shop, butchers, supermarkets, and primary school. The property will be freehold, with a new gas-fired combination boiler and installation date TBC, as well as new electrics and kitchen/bathroom fittings.