Land On The South Side Of, Red Hall... Land for sale

>

Land On The South Side Of, Red Hall... Land for sale

Land On The South Side Of, Red Hall Lane, Wakefield WF1
£450,000

Our Summary

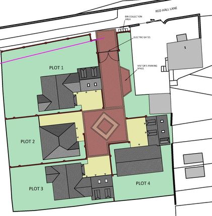
  • A fantastic land opportunity to develop 4 truly luxurious detached properties in the heart of Wakefield
  • With full planning permission to build 4 detached dwellings within a gated development, Red Hall Lane brings premium living with the convenience of Wakefield City Centre
  • Full planning details can be found on Wakefield planning portal with reference 22/01364/FUL
  • A fantastic development opportunity
  • Full planning permission

Description

This luxurious land opportunity in Wakefield offers the chance to develop four detached properties in a gated development, with full planning permission in place. Each property is designed to a high specification, making them perfect for families and working professionals. The development is located in the heart of Wakefield, with easy access to local amenities, restaurants, and bars, as well as the M1 and M62 motorways for daily commuters. The site can be accessed from Leeds Road, avoiding major traffic from the A650. With planning reference 22/01364/FUL, a viewing is highly recommended to appreciate the development's many benefits.