Property in Reigate
Find discounted property in this area!
Filter your results
Land for sale
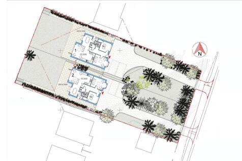
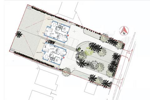
PARCEL OF LAND FOR SALE For Sale by Public Online Auction on 29/10/2025 13:00 Location The propert...
Property added on 23/09/25
Property located in Land Adjacent, 1 St. Davids Close, Reigate, Surrey, RH2 0EL
£5,000
Laglands Close, Reigate, Surrey 4 bed link detached house for sale
Outside double garage, parking for 2/3 cars, attached to the house are 3 stables, large workshop, st...
Property added on 02/04/25
Property located in Laglands Close, Reigate, Surrey
£1,095,000