Property in Westbury

Find discounted property in this area!

Field Close, Westbury 4 bed detached house for sale

Field Close, Westbury 4 bed detached house for sale

The current owners had planning permission granted in 2017 (Ref: 17/02038/FUL) for a first-floor ext...

Property added on 16/08/25
Property located in Field Close, Westbury BA13
£675,000
Cowleaze Lane, Edington Westbury, BA13 4 bed barn conversion for sale

Cowleaze Lane, Edington Westbury, BA13 4 bed barn conversion for sale

An amazing range of outbuildings offer a superb development opportunity for additional accommodation...

Property added on 07/08/25
Property located in Cowleaze Lane, Edington Westbury, BA13
£1,450,000
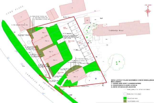
Plot for sale

Plot for sale

Description - We are delighted to be able to offer this development opportunity at Courtleigh, which...

Property added on 19/06/25
Property located in Development at Courtleigh, With full planning, Westbury Leigh, BA13
£495,000
Land

Land

1 ha) with planning permission for up to 54 dwellings at the rear of 117 High Street, Dilton Marsh, ...

Property added on 22/05/25
Property located in High Street, Dilton Marsh, Westbury BA13
£3,000,000
Orchard Road, Westbury 4 bed bungalow for sale

Orchard Road, Westbury 4 bed bungalow for sale

A rare opportunity to acquire a spacious detached bungalow with great potential.

Property added on 01/05/25
Property located in Orchard Road, Westbury
£425,000
Church Road, Heywood, Westbury... Land for sale

Church Road, Heywood, Westbury... Land for sale

This charming barn is set in a picturesque rural location and offers the perfect opportunity to crea...

Property added on 08/04/25
Property located in Church Road, Heywood, Westbury, Wiltshire, BA13
£325,000
Downsview, Westbury BA13 4 bed detached house for sale

Downsview, Westbury BA13 4 bed detached house for sale

This property would be excellent if you are looking for a family home or if you are looking to make ...

Property added on 07/04/25
Property located in Downsview, Edington, Westbury, BA13
£475,000
The Butts, Westbury 3 bed detached bungalow for sale

The Butts, Westbury 3 bed detached bungalow for sale

The lounge, situated at the rear of the house, offers ample room for all your lounge furniture and h...

Property added on 07/03/25
Property located in The Butts, Westbury BA13
£425,000
4 bedroom semi-detached house for sale

4 bedroom semi-detached house for sale

Currently tenanted and in need of a little TLC, the property is set to be vacant soon—leaving you wi...

Property added on 28/01/25
Property located in Eden Vale Road, Westbury BA13
£375,000
The Tynings, Westbury Land for sale

The Tynings, Westbury Land for sale

A development opportunity is available for a plot that has received planning approval for a three-be...

Property added on 27/09/24
Property located in The Tynings, Westbury
£95,000